A69340-001-008

Ammortizzatore colpi d'ariete AW Pax 1/2" x 1/2" – Doccia & Vasca

Protegge rubinetteria esterna di doccia e vasca dai colpi d'ariete e dai rumori nelle tubature. Assorbe picchi di pressione fino a 25 bar, riduce il rumore fino a 5 dB(A). Norma SIA 181. Installare a coppie.

92,00 CHF
Tasse escluse

Protezione dai colpi d'ariete per rubinetteria esterna di doccia e vasca

Le valvole a chiusura rapida nei miscelatori di doccia e vasca generano onde d'urto idrauliche — i colpi d'ariete — che causano rumori nelle tubature e un'usura prematura delle cartucce ceramiche. L'ammortizzatore AW Pax 1/2" x 1/2" Chromeline assorbe questi urti alla fonte, in modo discreto e duraturo.

I vantaggi in sintesi

  • Assorbimento dei picchi di pressione fino a 25 bar
  • Riduzione dei rumori di scorrimento fino a 5 dB(A)
  • Conforme alla norma svizzera SIA 181
  • Finitura Chromeline — elegante e discreta
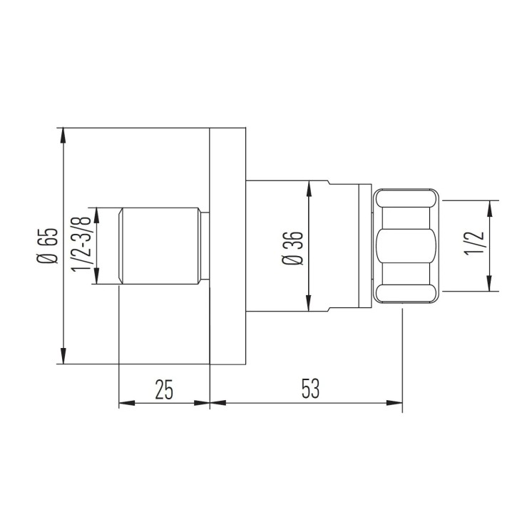
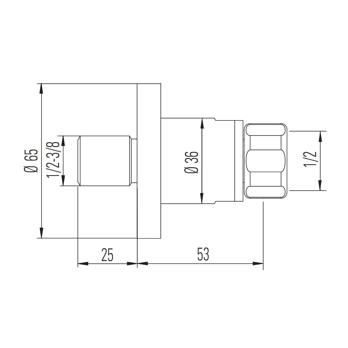
  • Raccordo G 1/2" x 1/2" con dado scorrevole per facilitare il montaggio

Installazione

L'ammortizzatore si installa direttamente all'ingresso della rubinetteria esterna di doccia o vasca. La sporgenza di L = 53 mm deve essere rigorosamente rispettata durante il montaggio. Installare obbligatoriamente a coppie — un modulo sull'entrata dell'acqua calda, uno sull'entrata dell'acqua fredda.

Domande frequenti

Qual è la differenza con il modello 3/8" x 1/2"?

Questo modello 1/2" x 1/2" è progettato per rubinetterie esterne con entrambi i raccordi in 1/2". Il modello 3/8" x 1/2" è adatto per rubinetterie con raccordo d'ingresso in 3/8". Verificare il raccordo del proprio miscelatore prima di ordinare.

Perché installare l'ammortizzatore a coppie?

Ogni miscelatore dispone di due entrate d'acqua — calda e fredda. Per una protezione completa ed efficace, è necessario installare un ammortizzatore su ciascuna entrata.

Con quale rubinetteria è compatibile?

Compatibile con tutta la rubinetteria esterna standard con raccordo 1/2" x 1/2" — doccia e vasca. È un raccordo molto diffuso in Svizzera e in Europa.

  • Marca
  • Riferimento
    A69340-001-008
  • Condizione
    Nuovo
  • ean13
    7649988778933
  • MPN
    A69340-001-008
  • Pressione Nominale
    10 bar
  • Raccordo
    ½ x ½
  • Riduzione del rumore
    Fino a 5 dB(A)
  • Riduzione del colpo d'ariete
    Fino a 25 bar
  • Norma acustica
    SIA 181
  • Pressione d'esercizio
    max. 5 bar
  • Uso / Applicazione
    Rubinetteria esterne, doccia, vasca
  • Resistenza alla temperatura
    max. 80°C
  • Sporgenza
    L 53 mm da rispettare
  • Matériau du Corps
    Conforme Normes Suisses
Loading...